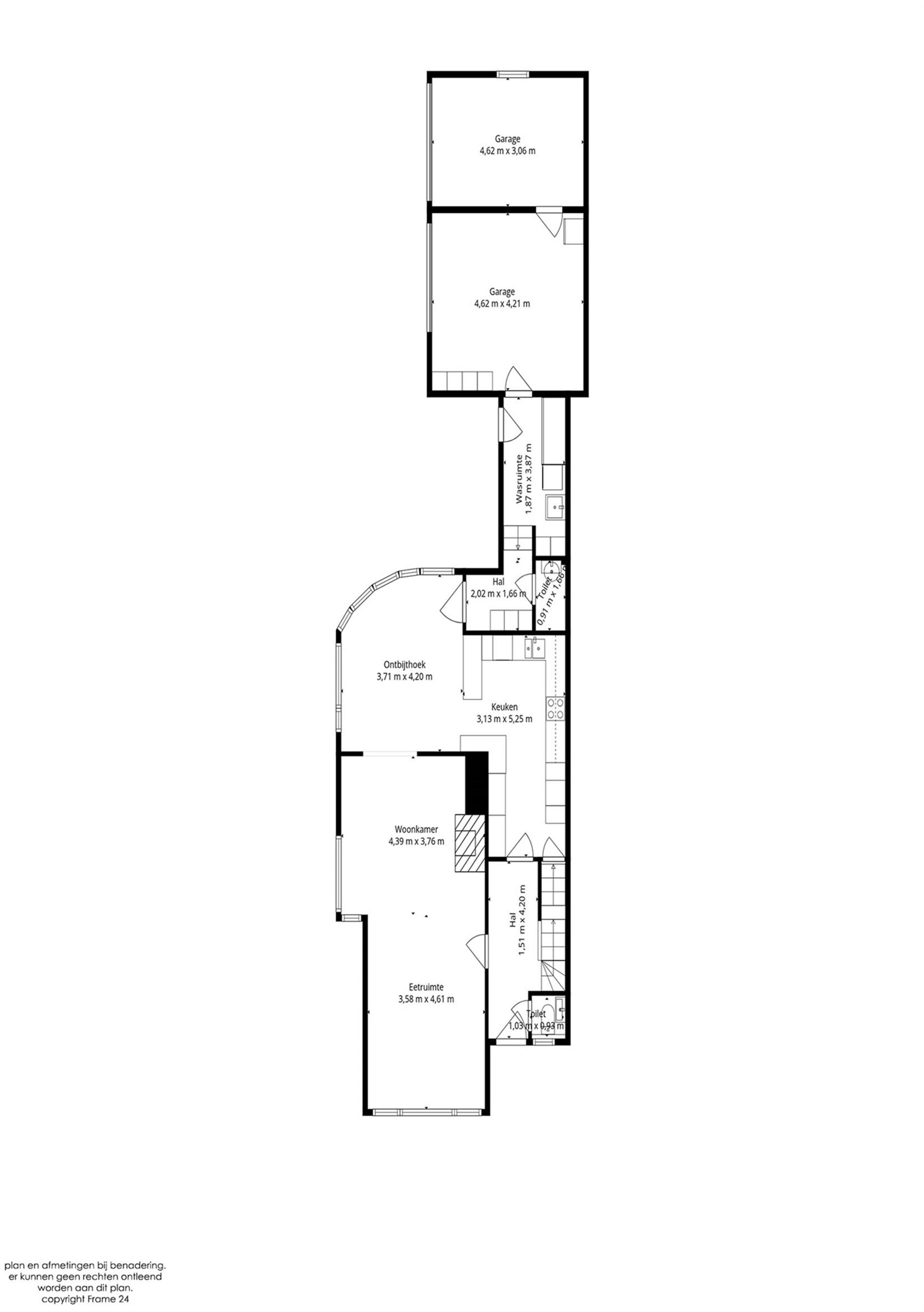
Aangename gezinswoning met een verrassend ruime bewoonbare oppervlakte, gunstig gelegen in het landelijke Sint-Katelijne-Waver. Deze mooie, karaktervolle gezinswoning werd sinds de jaren 90 grotendeels gemoderniseerd met kwalitatieve materialen en werd steeds met de grootste zorg onderhouden. De woning is voorzien van alle moderne comfort, waaronder ook zonnepanelen met groenestroomcertificaten (€ 450 per certificaat). Deze lichtrijke woonst biedt een aangename thuis met gezellige woonkamer bestaande uit zithoek met houtcassette en eetplaats, met aansluitend een geïnstalleerde leefkeuken (vernieuwd in 2017). Op het gelijkvloers is er tevens een berging/wasplaats. Op de eerste verdieping zijn er in totaal 3 ruime slaapkamers, een bureel / dressing, een badkamer met bad en douche, een apart toilet en een berging. Op de tweede verdieping is er nog een ruime kamer ingericht met ernaast een bergzolder. Voldoende parkeergelegenheid is gegarandeerd dankzij een ruime oprit en 2 garages. Achteraan de woning kan u tot rust komen in de aangelegde tuin. Een unieke kans voor wie een woning zoekt gelegen op fietsafstand van landelijke dorpscentra met scholen, winkels en openbaar vervoer. Een vlotte bereikbaarheid is tevens gegarandeerd, gezien de centrale ligging tussen Brussel - Antwerpen, Mechelen - Lier. Kom de troeven ter plaatse ontdekken en maak een afspraak: 015/755 444 of info@immovercammen.be. Beschikbaarheid overeen te komen (voorjaar 2027).























