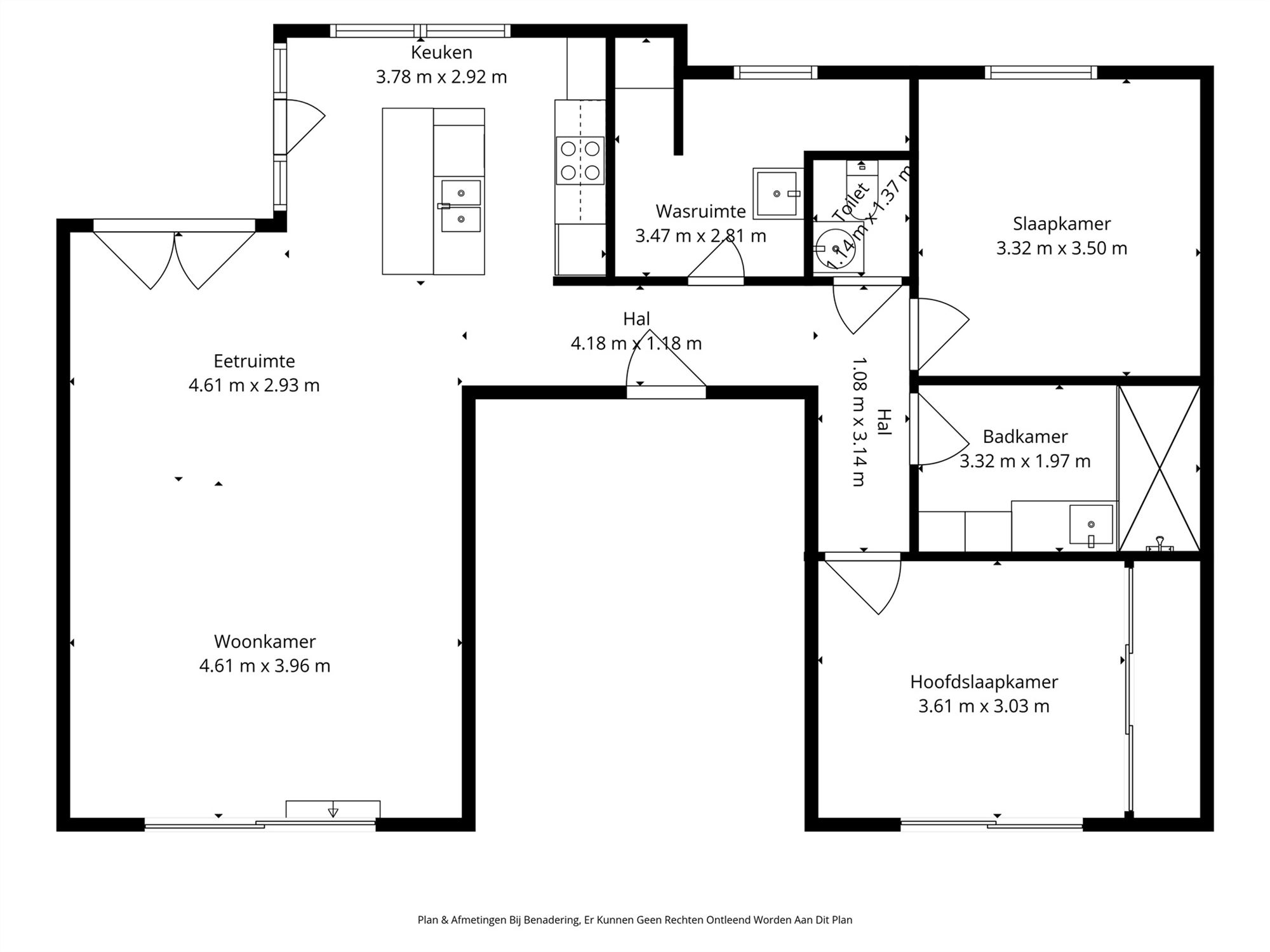
Knap dakappartement met zeer ruim, zuid gericht terras, in een aangename residentie nabij het dorpscentrum van Sint-Katelijne-Waver. Dit recente penthouse-appartement, gebouwd in 2015, werd met hoogwaardige materialen afgewerkt en is perfect instapklaar. Het appartement, bereikbaar via lift, is gelegen op de bovenste verdieping waardoor u heerlijk kan geniet van rust en privacy. Dankzij grote raampartijen kan u heerlijk genieten van aangename leefruimtes en een prachtig uitzicht op de omgeving en achterliggende weilanden. Een riante woonkamer met geïnstalleerde open keuken bieden een ideale thuis. De nachthal geeft toegang tot 2 mooie slaapkamers, een badkamer met douche en een apart gastentoilet. Een praktische berging / wasplaats en een ruime bergzolder bieden heel wat stockageruimte. En indien u niet binnen wilt vertoeven, kan u genieten van 2 mooie terrassen, waarvan het terras achteraan perfect zuid georiënteerd is met mooi groen uitzicht. In de ondergrondse parkeergarage is er een zeer ruime, afgesloten garagebox voorzien, inbegrepen in de vraagprijs. Het appartement geniet een degelijke afwerkingsgraad met diverse extra's, o.a. airco in de woonkamer, rolluiken aan de masterbedroom, zonnetent aan het zuid-gerichte terras, maatkasten, etc. Een unieke kans voor wie een riant appartement zoekt, gelegen in het centrum van Sint-Katelijne-Waver, met winkels, restaurants en scholen op wandelafstand. Een vlotte bereikbaarheid is tevens gegarandeerd via belangrijke invalswegen (R6-E19), openbaar vervoer en fietsostrade.














