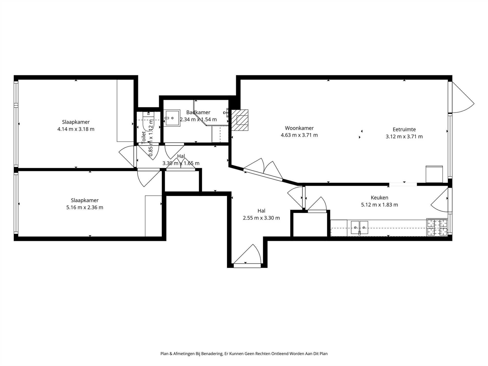
Ruim appartement met 2 slaapkamers, gelegen op de stadsrand van Mechelen. Dit appartement is uitermate goed gelegen, op wandelafstand van het centrum. Het appartement bevindt zich op de 5de verdieping van de residentie Van Kesbeeck, te bereiken via trap en lift. Verder beschikt het appartement over een ruime inkomhal, leefruimte die uitgeeft op het eerste terras, keuken, vernieuwde badkamer met inloopdouche, apart toilet, twee slaapkamers en het tweede terras met een subliem uitzicht op stad Mechelen. Dit appartement is uitermate geschikt voor zowel investering als eigen bewoning. Privatieve kelder en een gemeenschappelijke fietsenberging aanwezig. Interesse in dit pand? Kom de troeven van de woonst ter plaatse ontdekken en maak een afspraak: 015/755 444 of info@immovercammen.be













