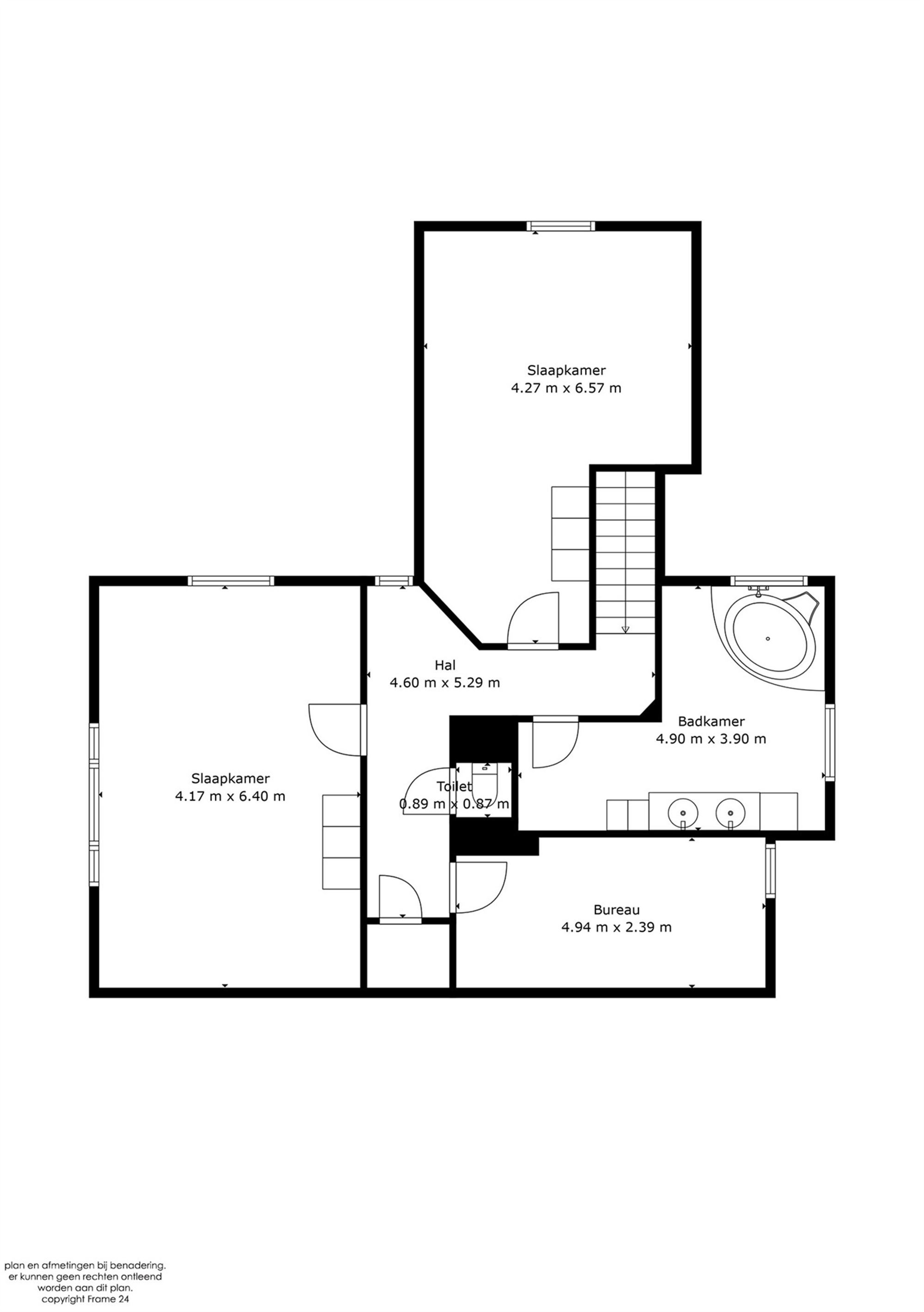
Energiezuinige villa met een verrassend ruime bewoonbare oppervlakte, residentieel gelegen vlakbij het landelijke dorpscentrum van Putte. Deze mooie gezinswoning werd met kwalitatieve materialen opgebouwd en steeds met de grootste zorg onderhouden. De woning is voorzien van alle moderne comfort. Energiezuinigheid is een absolute troef, mede dankzij een groot aantal zonnepanelen. Deze lichtrijke woonst biedt een aangename thuis met gezellige woonkamer en aansluitend een geïnstalleerde leefkeuken. Op het gelijkvloers is er tevens een slaapkamer en een doucheruimte voorzien. Op de eerste verdieping zijn er in totaal 3 ruime slaapkamers en een badkamer met hoekbad. Indien gewenst kan de grootste slaapkamer opgesplitst worden in 2 afzondelijke kinderkamers. Verscheidene bergruimtes bieden voldoende stockageruimte. Parkeergelegenheid is voorzien in de inpandige garage en op de oprit. Achteraan de woning kan u tot rust komen in de aangelegde, perfect zuid georiënteerde tuin, met achterliggend prachtig vergezicht op weilanden. Een unieke kans voor wie een woning zoekt gelegen op wandelafstand van het landelijke dorpscentrum, met scholen, winkels en openbaar vervoer. Een vlotte bereikbaarheid is tevens gegarandeerd, gezien de centrale ligging in de Brussel - Antwerpen - Leuven - Mechelen. Kom de troeven ter plaatse ontdekken en maak een afspraak: 015/755 444 of info@immovercammen.be . Beschikbaarheid overeen te komen.





















