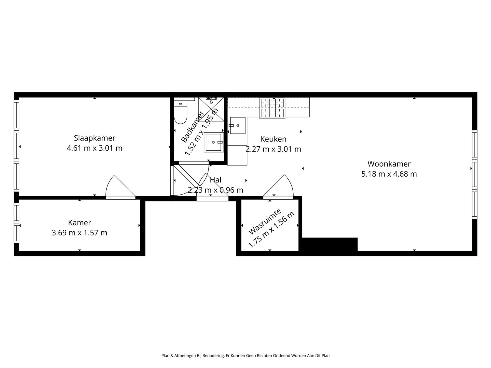
Aangenaam appartement op de stadsrand van Mechelen. Het appartement beschikt over twee slaapkamers, waarvan één doorloopkamer, een lichtrijke leefruimte met toegang tot een terras, een praktisch ingerichte keuken en badkamer, en een inpandige garage. Dankzij de vlotte verbinding met het centrum en de invalswegen is dit een ideale woonst voor wie goed bereikbaar wil wonen. Onmiddellijk beschikbaar.













