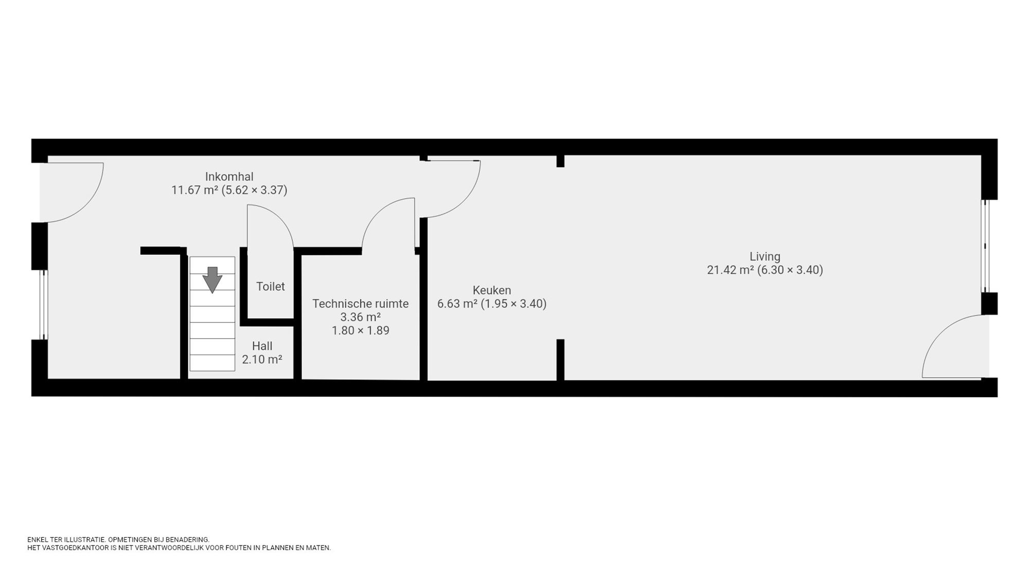
Instapklare woning te Muizen. Dit prachtige huis werd recent volledige gerenoveerd en geoptimaliseerd. De woning is voorzien van alle moderne comfort, o.a. warmtepomp en airco. Er werd gekozen voor kwalitatieve, duurzame materialen en dankzij grote raampartijen is er in de hele woning heel veel lichtinval. Op het gelijkvloers betreedt u de woning via een ruime inkomhal, waar tevens plaats is voor een bureelhoek / thuiswerkplek. De woonkamer met open keuken bieden een gezellige thuis. Op de verdiepingen zijn in totaal 3 ruime slaapkamers en een badkamer met inloopdouche. Verscheidene bergruimtes bieden voldoende stockageruimte. Achteraan de woning is het heerlijk vertoeven op het aangename terras en in de west georiënteerde tuin, tevens bereikbaar via erfdienstbare wegenis. De woning is gelegen in een rustige straat in het dorpscentrum van Muizen, met scholen, winkels, openbaar vervoer en treinstation op wandelafstand. Een vlotte bereikbaarheid is gegarandeerd via belangrijke invalswegen centraal tussen Brussel - Antwerpen en Mechelen - Leuven. Kom de troeven van deze woonst ter plaatse ontdekken en maak een afspraak: 015/755 444 of info@immovercammen.be De woning is beschikbaar vanaf 1 juni 2026.



















