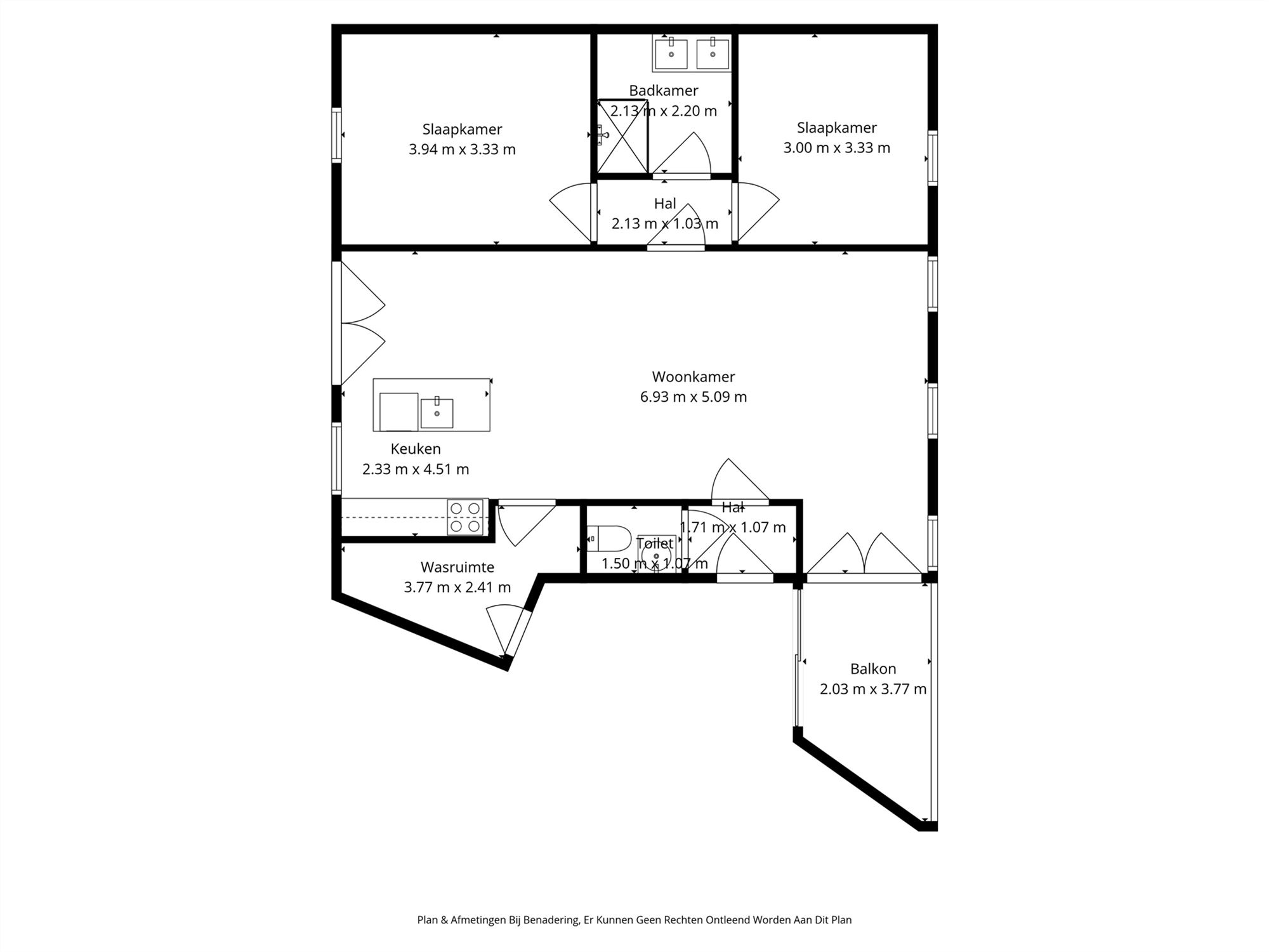
Recent dakappartement met 2 slaapkamers en een dubbele autostaanplaats te Mechelen. Dit lichtrijke appartement, met een bewoonbare oppervlakte van 95 m², bevindt zich op de derde verdieping en is toegankelijk via een lift. De indeling is al volgt: een inkomhal met toilet, ruime living met eetkamer, open keuken met aansluitende berging, 2 slaapkamers, een badkamer met inloopdouche en een terras. Ondergronds bevindt er zich een dubbele autostaanplaats en men kan gebruik maken van een gemeenschappelijke fietsenberging. Gelegen op een rustige locatie, op wandelafstand van het centrum van Mechelen en met een vlotte bereikbaarheid via de E19. Gemeenschappelijke kosten: € 75 / maand Beschikbaar: 1/01/2026














