Recent gelijkvloersappartement te Onze-Lieve-Vrouw-Waver

Dijk 30, 2861 ONZE-LIEVE-VROUW-WAVER

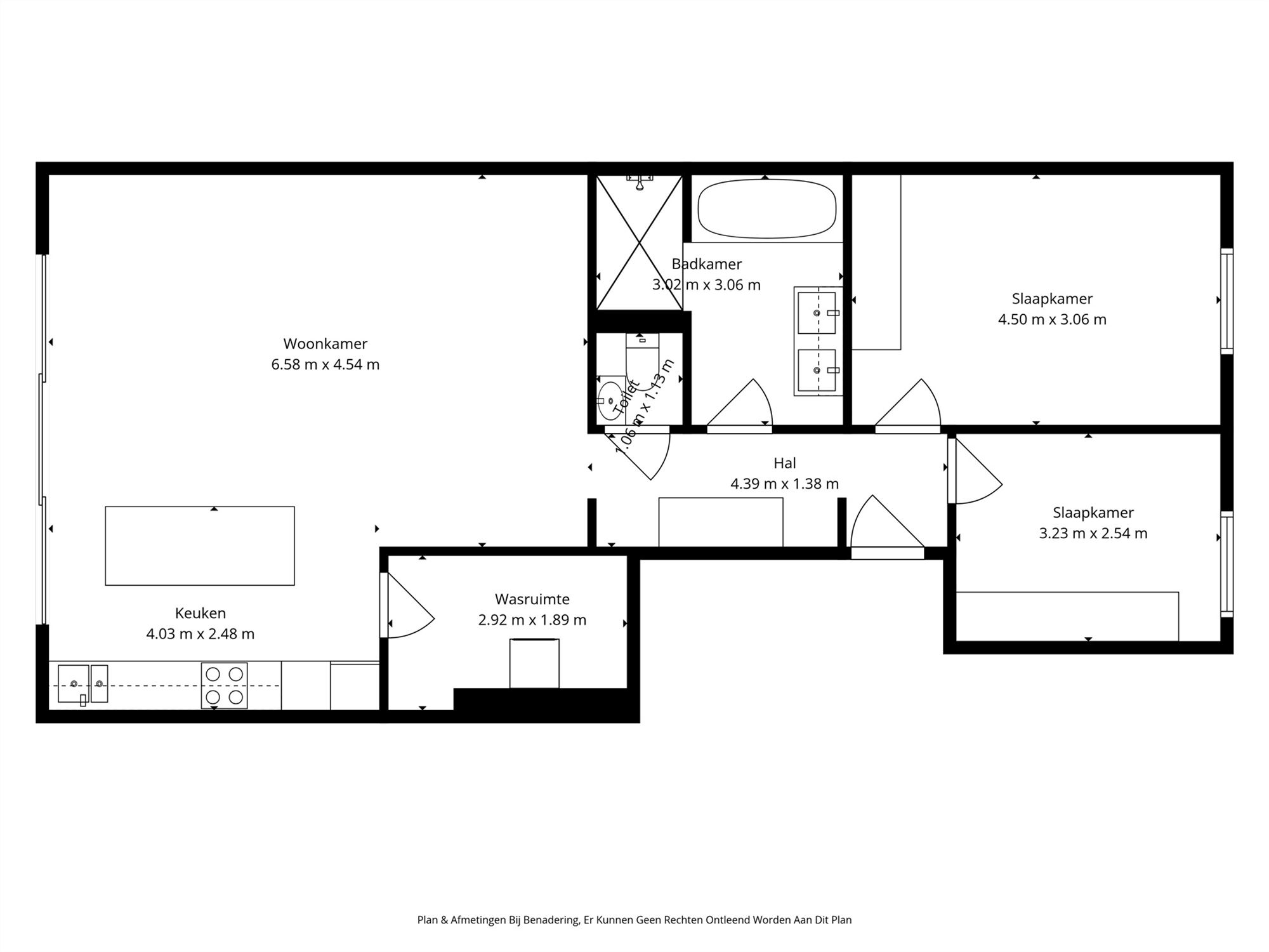
Recent gelijkvloers appartement, voorzien van alle moderne comfort, gunstig gelegen pal in het centrum van het landelijke Onze-Lieve-Vrouw-Waver. Dit instapklaar appartement is gelegen op het gelijkvloers, in een kleinschalige residentie. Dit lichtrijke appartement is functioneel ingedeeld en vlot toegankelijk met alle woonvertrekken op het gelijkvloers. De gezellige woonkamer met open keuken bieden een ideale thuis. In de nachthal vindt u twee slaapkamers en een ingerichte badkamer met ligbad en inloopdouche, als ook een berging met aansluiting voor wasmachine en een apart gastentoilet. De aangename, west gerichte tuin met terras geeft u de kans om buiten te vertoeven. Parkeergelegenheid is voorzien, met achterliggend 2 autostaanplaatsen, inbegrepen in de huurprijs. Het appartement is gunstig gelegen pal in het landelijke centrum van Onze-Lieve-Vrouw-Waver, met winkels, scholen en openbaar vervoer op wandelafstand. Een vlotte bereikbaarheid is eveneens gegarandeerd via o.a. R6-E19. Beschikbaar vanaf 15 november 2025. - Huurprijs € 975, lasten € 50 per maand.

Algemeen

€ 975
Aantal slaapkamers
2
Aantal badkamers
1
Bewoonbare opp.
93 m²
Vrij
Datum 15-11-2025

EPC

EPC No.12035-G-BA/2014/014/EP02120/A001/D01/SD002
EPC
89.51 kWh/m².jaar


Financiële Info

Stedenbouwkundige informatie

Bouwjaar
2016
Erfgoed
Nee

Comfort

Verwarming
CV op gas
Oriëntatie achtergevel
West
Type dak
Zadeldak
Dakbedekking
Pannen
Aansluiting aardgas
Ja
Aansluiting waterleiding
Ja
Lift
Ja
Keuken
Alle comfort
Beglazing
Dubbel
Raamkozijn
alu
Comfort binnen
Videofoon, Aangepast aan mindervaliden, Internet

Indeling

Lasten

Lasten huurder
€ 50

Google kaart


De kaart vergroten